︎
studio
projects
contact
030
2023
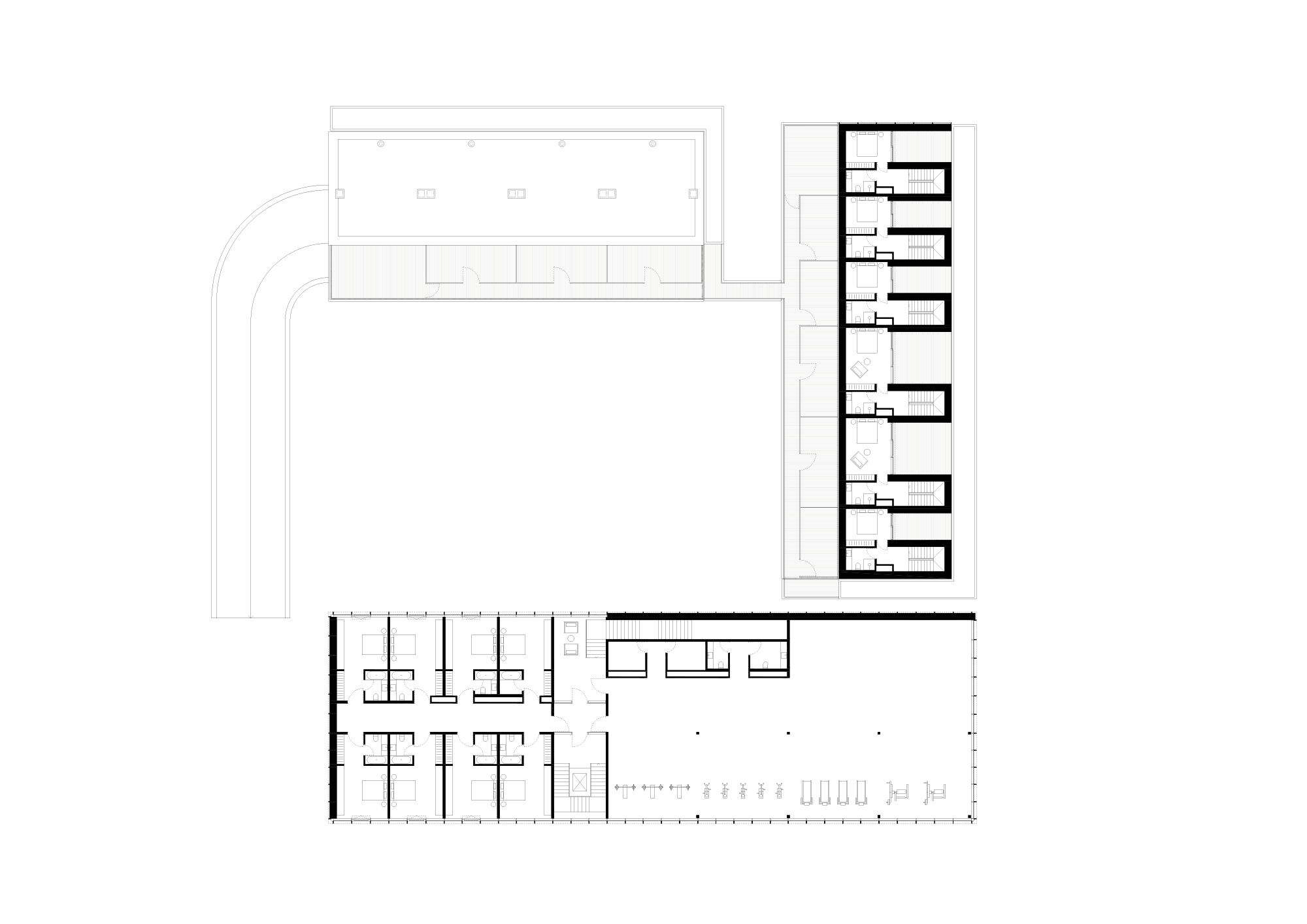
Multifunctional Building in Gargždai / Concept
Visualisations by
Visual Phenomena Studies
︎